Vũng Tàu Centre Point là một phần của siêu dự án Khu đô thị Chí Linh. Dự án mà có quy mô cũng như tiềm lực lớn nhất tại thành phố Vũng Tàu. Khu chung cơ sỡ hữu vị trí ngay trung tâm thành phố. Toạ lạc ở phường 10, ngã tư lớn giao nhau của đường Bình Giã (đường 2/9) và đường Nguyễn Hữu Cảnh. Với tổng diện tích 7428m2, bao gồm 595 căn hộ từ tiêu chuẩn đến căn hộ Shophouse.
Lý do chung cư Chí Linh hay khu đô thị là dự án hàng đầu tại Vũng Tàu tới từ chủ đầu tư tập đoàn DIC. Không cần phải giới thiệu quá nhiều khi mà họ luôn là chủ đầu tư những dự án lớn khắp miền Nam. Đảm bảo dự uy tín, an toàn và khả năng lợi nhuận cho mọi nhà đầu tư tin tưởng họ.

Tổng quan Vũng Tàu Centre Point
| Tên dự án | Vũng Tàu Centre Point |
| Vị trí | Ngã tư Bình Giã – Nguyễn Hữu Cảnh, phường 10, TP,Vũng Tàu |
| Chủ đầu tư | Công ty Cổ phần xây dựng DIC HOlDINGS |
| Nhà thầu | DIC Contrucsion (tiền thân là DIC 4) |
| Đơn vị quản lí | Savills Việt Nam |
| Vốn đầu tư | Khoảng 1300 tỷ đồng |
| Tổng quy mô | 7428m2 với hai Block 25 tầng có hầm để xe ( 5 tầng phục vụ thương mại dịch vụ, 20 tầng căn hộ) |
| Sản phẩm | 595 căn hộ gồm: 540 căn hộ tiêu chuẩn, 26 căn hộ Duplex và 29 căn hộ Shophouse |
| Tiện ích | Khu thể thao, khu thương mại, trum tâm giải trí,.. |
| Pháp lý | Thuộc dự án Khu đô thị Chí Linh, được phê duyệt bới UBND tỉnh Bà Rịa Vũng Tàu |

Vị trí Vũng Tàu Centre Point
Mặt tiền lô góc đắt giá nhất Vũng Tàu
Khu Vũng Tàu Centre Point nằm tại ngã tư giao nhau của đường Bình Giã (đường 2/9) và đường Nguyễn Hữu Cảnh tại phường 10, thành phố Vũng Tàu. Đây là hai tuyến đường quan trọng và sỡ hữu nhiều lợi thế đặc biệt.
Về đường Bình Giã hay đường 2/9 là tuyến đường lớn chạy song song với đường 3/2 ( đường QL 51 ). Dọc theo toàn bộ chiều dài thành phố và đổ bộ ra cung đường ven biển. Tuyến đường để đi đến các bãi biển, khu du lịch nổi tiếng ở Hồ Tràm.
Đối với Nguyễn Hữu Cảnh nó giúp di chuyển nhanh chóng ra bãi biển Chí Linh. Một bãi biển với nhiều loại hình dịch vụ cung cấp hàng trăm ngàn khác hàng mỗi năm.

Vũng Tàu Centre Point với khả năng giao thương và lợi thế phát triển
Từ chung cư với hệ thống hạ tầng được đầu tư kĩ lưỡng. Thời gian di chuyển đến các trung tâm kinh tế rất nhanh chóng. Vừa giúp cộng đồng dân cư sinh sống tại đây dễ dàng đi lại giao thương. Vừa giúp thu hút được các dân cư ở các khu vực lận cận đổ bộ vào đây kinh doanh, buôn bán.
- Thời gian đến trung tâm thành phố Bà Rịa khoảng 30 phút
- Đến thị xã Phú Mỹ hay cảng Cái Mép chỉ 45 phút
- Cách sân bay Long Thành, sân bay dự kiến lớn nhất miền Nam với 60 phút
- Đển trung tâm thành phố HCM chỉ với 75 phút thông qua QL 51 và cao tốc Long Thành – HCM

Chưa kể thành phố Vũng Tàu luôn là một trong những thành phố có lượt du khách ghé thăm hằng năm cao. Các loại hình dịch vụ tiện tích và dân cư cũng tăng theo. Sẽ còn đẩy nhu cầu mặt bằng và nhà ở lên cao nhiều lần.
Tiện ích Vũng Tàu Centre Point
Là một phần của cả khu đô thị Chí Linh, nên chung cư cũng sẽ được hưởng những tiện ích hàng đầu tại đây. Nổi bật trong đó là sân golf 32 lỗ chỉ cách khoảng 10 phút di chuyển. Chưa kể còn có những trung tâm mua sắm hay khu vui chơi giải trí nhằm đáp ứng mọi nhu cầu.

Tiện ích nội khu
Ngoài những tiện ích chung từ khu đô thị Chí Linh, thì tại chung cư cũng sỡ hữu nhiều tiện nghi. Trong đó bao gồm như: Siêu thị mini, hồ bơi ngoài trời, phòng gym, Shophouse, khu giải trí,..
Ngoài ra chung cư Vũng Tàu Centre Point cũng đảm bảo những tiện ích tiêu chuẩn của một khu chung cư cao cấp. Với hệ thống tầng hầm, thang máy và giám sát đảm bảo an ninh cho dân cư.





Tiện ích ngoại khu của chung cư Vũng Tàu Centre Point
Thành phố Vũng Tàu từ lâu đã là một thành phố lớn, cùng với lượng dân cư đông đúc. Do đó nơi đây có rất nhiều tiện ích từ cơ bản đến cao cấp. Trong vòng bán kính 5km đổ lại sẽ đến được: Trường học, bệnh viện, Siêu thị, Trung tâm mua sắm, Sân Golf và vô số dịch vụ khác.

Chưa kể hệ thống hạ tầng được quy hoạch chuẩn chỉ. Giúp anh chị khi đi lại dễ dàng tránh bị ùn tắc giao thông.
Mặt bằng Vũng Tàu Centre Point
Tổng thể thiết kế
Dự án bao gồm 2 block với mỗi block cao 25 tầng và một tầm hầm gửi xe. Trong đó tầng 1 và tầng 2 là khu vực đại sảnh và là trung tâm mua sắm. Tầng 3 là khu vực Shophouse với tổng cộng 29 căn hộ. Tầng 4 sẽ là nơi đặt bể bơi ngoài trời.

Từ tầng 5 đến tầng 23 sẽ là khu vực các căn hộ tiêu chuẩn, với diện tích đa dạng. Cuối cùng là tầng 24 là khu vực các căn hộ Duplex, là dòng sản phẩm cao cấp. Với không gian rộng cùng thiết kế tiện nghi sang trọng.
Là một phần của khu đô thị Chí Linh nên dự án này được thiết kế và giám sát chặt chễ. Không gian được tối ưu hoá nhằm tạo cảm giác rộng rãi và tầm nhìn đẹp cho chủ sỡ hữu.
Sơ đồ thiết kế các căn hộ Vũng Tàu Centre Point
Các căn hộ đều có thiết kế chung theo phong cách hiện đại và tối ưu hoá không gian. Mà vẫn đảm bảo đáp ứng đầy đủ các tiện nghi.
Chưa kể dự án còn cung cấp nhiều loại có diện tích đa dạng từ 1 đến 3 phòng ngủ đáp ứng nhu cầu của chủ đầu tư. Với diện tích từ 64 m2 đến 94m2.
Căn hộ diện tích 64,3m2 với 2 phòng ngủ |
Căn hộ 69,5m2 với 2 phòng ngủ |
Căn hộ 76,8m2 với 2 phòng ngủ |
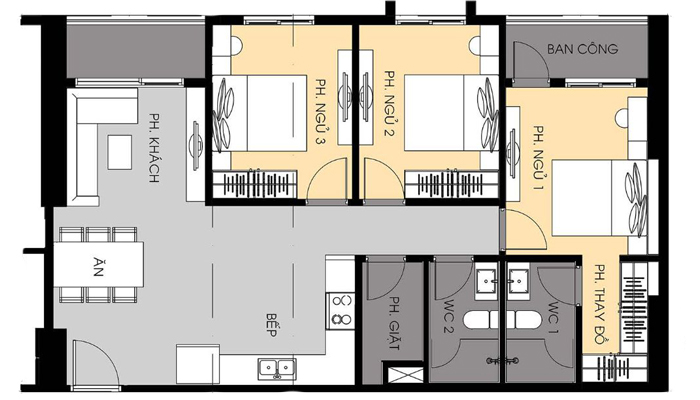
Căn hộ 81,5m2 có 2 phòng ngủ và tiện nghi |
NỘI THẤT BÀN GIAO

Bảng giá
Hiện tại mức giá dự kiến khoảng từ 40 đến 45 triệu/m2. Tất nhiên sẽ còn tuỳ thuộc vào loại căn hộ cũng như vị trí mà giá có thể có sự thay đổi.
Phương Thức Thanh Toán





Đánh giá
Lý do nên mua Vũng Tàu Centre Point
Lí do quan trọng, quyết định sự thành công và lợi nhuận của một dựn án chính là vị trí. Chung cư Chí Linh sỡ hữu ví trí mặt tiền lô góc hai tuyến đường lớn của thành phố Vũng Tàu. Trong thời buổi quỹ đất nơi đây càng khan hiếm thì nơi đấy quả thật là một lợi thế to lớn của dự án.
Vị trí tốt còn cung cấp khả năg di chuyển, giao thương kinh doanh buôn bán thuật lợi. Nên lưu ý rằng từ chung cử chỉ với 15 phút đổ lại là đã dễ dàng di chuyển đến các dịch vụ tiện ích lớn.
Thứ hai là có chủ đầu tư uy tín hàng đầu miền Nam. DIC Holdings là một phần của siêu tập đoàn DIC. Chuyển phát triển các dự án công trình xây dựng. Họ đã thực hiện nhiều khu đô thị tại Hà Nam, Đồng Nai, Phú Mỹ, Vĩnh Phúc,.. Ngoài ra còn nhận nhiều giải thưởng như TOP 6 công ty bất động sản toàn quốc, Giải bạc quy hoạch đô thị quốc gia,..
Thứ ba, Vũng Tàu Centre Point là một phần của khu đô thị Chí Linh. Điều này giúp người dân sinh sống tại đây tận dụng được các tiện ích hiện đại. Chưa kể nó còn tạo lên một khu đô thị, môi trường kinh doanh sôi động bậc nhất thành phố biển.
Cuối cùng là
Dòng chảy của nền kinh tế BĐS hiện nay. Một điều khiến cho khu vực Bà Rịa Vũng Tàu HOT như vậy trong vài năm qua. Chính là nơi đây được nhà nước tập trung phát triển. Quyết tâm biến nơi đây thành một thủ phủ kinh tế – du lịch lớn hàng đầu toàn quốc. Do đó giá đất hay mặt bằng nhà ở sẽ còn tăng trưởng mạnh mẽ. Việc đầu tư Vũng Tàu Centre Point lúc này là thời điểm hoàn hảo.
Hình ảnh thực tế Vũng Tàu Centre Point
Vào tháng 3 vừa qua, lễ khởi công chung cư Vũng Tàu Centre Point đã diễn ra. Các ban lãnh đạo của dự án đã nêu rõ mục tiêu hoàn thành trước chỉ tiêu đề ra. Đồng thời cũng đẩy mạnh hoàn thành các căn hộ mẫu cho khách hàng trực tiếp tham quan và tận chứng chất lượng sản phẩm.


Căn hộ diện tích 64,3m2 với 2 phòng ngủ
Căn hộ 69,5m2 với 2 phòng ngủ
Căn hộ 76,8m2 với 2 phòng ngủ
Căn hộ 81,5m2 có 2 phòng ngủ và tiện nghi